• Home
  • Portfolio
  • Team
  • Services
    • Construction Documents
    • Builders
    • Property Owners
  • Contact us
  • Home
  • Portfolio
  • Services
    • Builders & Developers
    • Construction Documents
    • Property Owners
  • Meet The Team
  • Contact Us

“Clarifying and correcting issues in the design documents before you start construction will not only save you money but a lot of time and effort in resolving conflicts.”

Finding the gaps before you start is the key  

Many times, construction documents come with gaps, challenges and ambiguities that you as a builder are used to finding once construction is underway, slowing down the process, creating conflicts, and too often having paid the cost of those mistakes during the design phase. We have the right digital tools, the expertise and the time that you likely don’t have to help you smooth the construction process saving money and time.

We will create a set of detailed drawings specifically designed for each subcontractor to help interpret the construction documents avoiding unnecessary mistakes caused by a lack of coordination and superfluous, hard to decipher, information.

Contact us  

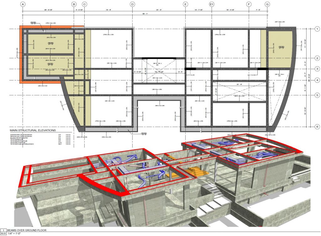
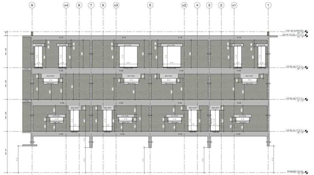
What are Construction Coordination Drawings?

Construction coordination drawings, also known as clash detection drawings or coordination sets, are essential documents in the construction process. They integrate various design disciplines, such as architectural, structural, mechanical, electrical, and plumbing (MEP), into a single, coordinated plan. These drawings identify potential clashes or conflicts between different building systems, helping to prevent costly delays and rework during construction.

Quality Assurance:

Quality is our top priority. We adhere to rigorous quality control measures to ensure that our coordination drawings meet industry standards and regulatory requirements, minimizing errors and maximizing efficiency on the construction site.

Documentation and Reporting:

We provide comprehensive documentation and reporting throughout the coordination process, including clash reports, coordination meeting minutes, and updated coordination drawings. This transparent communication ensures that all project stakeholders are informed and aligned.

Clash Detection and Resolution:

Using advanced software and industry best practices, we conduct thorough clash detection analysis to identify conflicts between architectural, structural, MEP, and other systems. We then provide clear, actionable solutions to resolve these clashes efficiently.

Revision Management:

We understand that construction projects evolve over time, requiring updates and revisions to coordination drawings. Our team manages revisions meticulously, ensuring that all stakeholders have access to the latest, most accurate information.

Would you like to discuss a project?

Fill out this form: 


    Team
    Portfolio
    Services
    Contact
    Privacy Policy

    Office Address

    906 Windward way Weston, FL 33327
    info@predomus.com
    786 464 9352

    Opening Hours

    Monday to Friday
    from 9 am to 5 pm
    Saturday – closed
    Sunday – closed

    Social

    Facebook
    Instagram

    “Even though I am an architect first and foremost, I believe that my skill as both an architect and contractor allows me to design architecture responsibly.”
    Ariel N. Villella-Founder of Predomus Llc

    Loading...
    Loading...